当前位置: 首页>跟团分类 >鲁能泰山7号院全户型解析

鲁能泰山7号院全户型解析

2020-10-19 21:08:02



鲁能泰山7号全户型设计



本次户型规划汇总

六叠中155㎡户型设计


六叠上137㎡户型设计


六叠下155㎡户型设计


五叠下180㎡户型设计


五叠下187㎡户型设计


五叠上175㎡户型设计


五叠中230㎡户型设计





服务团队

东易日盛江宁设计中心




1

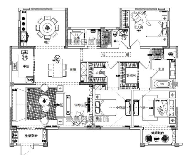
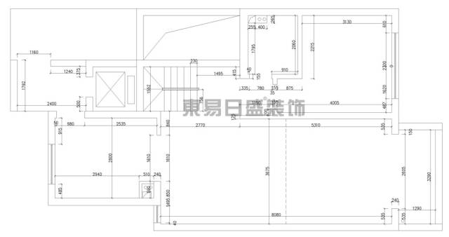
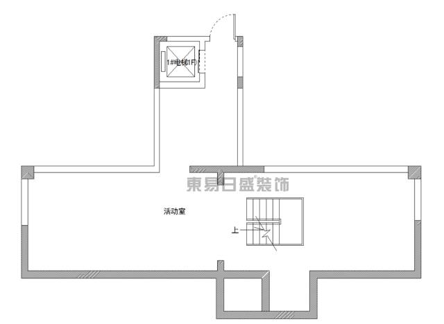
六叠中155㎡户型设计


案例户型:六叠中

案例面积:155㎡

案例风格:新中式

设 计 师  :乔刘勇


设计说明:

此案例没有明显的中式符号,却有整体的中式余韵,没有过多的装饰形态,却有整体的奢华之意。整个空间,设计师通过形、材、色、把空间塑造的一气呵成之感,自然、大气,简练中有品位,现代中有特色。设计就是这样,不经意,不刻意,强调整体,崇尚意境自然之美。


一层原始户型


二层原始户型


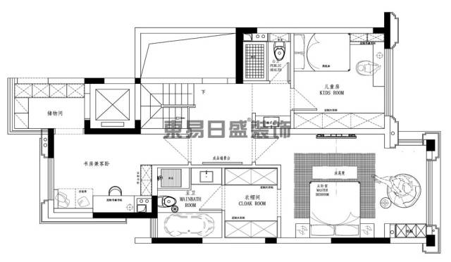
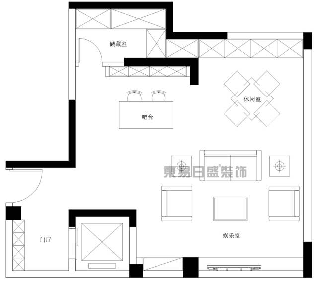
一层平面家具布置图


二层平面家具布置图


案例效果图




2

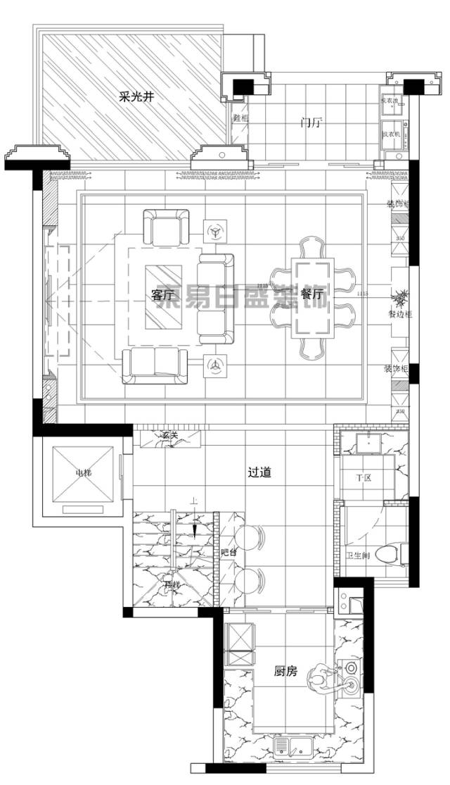
六叠上137㎡户型设计


案例户型:六叠上

案例面积:137㎡

案例风格:现代简约

设 计 师  :赵慧


设计说明:

本案采用材简明,色彩有序、较大的释放空间,达到以少胜多、以简胜繁的效果。

本案为三口之家,动静分离的两层空间及屋顶花园,简约,舒服,与业主一见如故。业主平时工作较忙,工作节奏快,希望回到家中得到较好的放松,与家人一起享受家的温馨与宁静。

简约精致的家具,原木色的护墙板,让家贴近自然,尽显自然的空旷和安宁。通透的客厅、餐厅空间共享,大理石纹的地砖与木色呼应,原木的扶手椅,绿植的安放让大自然的气息在屋内流淌,家是安静的,家是舒适的。

宽敞的露台,随手可触的绿植花卉,室内与室外最好的连接,慢下来,静下来,享受生活的美好。


一层原始平面图


二层原始平面图


露台原始平面图


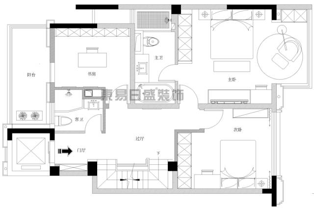
一层户型规划图


二层户型规划图


露台户型规划图


案例效果图




3

六叠上137㎡户型设计


案例户型:六叠上

案例面积:137㎡

案例风格:现代简约


设 计 师  :陈雪晴


设计说明:

此户型为鲁能泰山七号院的上叠户型,开发商的面积是137平,加上挑空赠送面积共150平,平分成两层,每个空间都相对比较小,首选定位为3-4口人居住。因楼下及楼上均暗卫,所以确定是把两个客卫取消,重新做两个明卫。

在取消楼下住人的基础上,把楼上做出来3个卧室,2大1小,1个主卫、1个客卫,这样充分利用空间,更符合人性化。


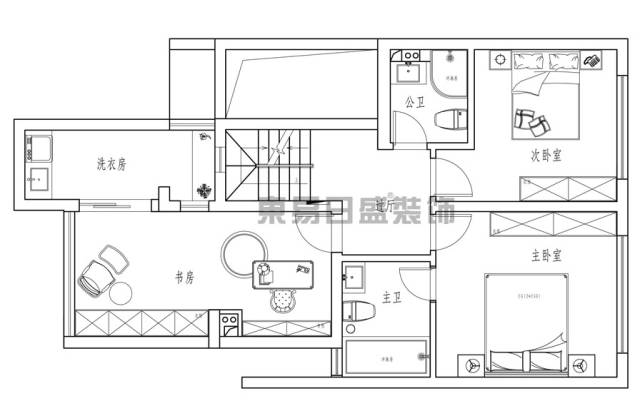
一层户型规划图

二层户型规划图


案例效果图





4

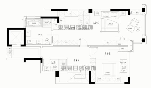
六叠下155㎡户型设计


案例户型:六叠下

案例面积:155㎡

案例风格:现代前卫


设 计 师  :李如华


设计说明:

本案在户型结构上做了相应的调整,一楼卫生间的位置改动,二楼主卧衣帽间开放式处理使得客餐厅及主卧满足收纳的同时更加宽敞大气,楼梯前方的玄关解决了正对阳台的风水问题,厨房空间的扩大,增强了厨房的空间及实用性。

繁复的精雕细琢在一般人的家中并不能「生活」,假设家中每一件摆设都美得像艺术品时,人将无法拥有安全感,因此在造型上多以简洁的直线为主,化繁为简。

效果上主体色采用了大面的蓝灰色乳胶漆,客厅及餐厅背景墙同样运用雅士白大理石及温馨的木饰面,做到了既美观又呼应的效果。


一层平面布置图


二层平面布置图


案例效果图






5

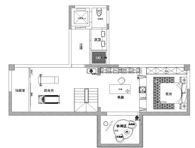
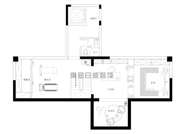
五叠下180㎡户型设计


案例户型:五叠下

案例面积:180㎡

案例风格:现代美式


设 计 师  :任秋玲


设计说明:

本案户型为五叠下,结合业主需求、设计师的整体规划,将房屋进行了改造,进门处设计了一组鞋柜,解决进门换鞋功能。由于本案业主人口不多,将原户型四间卫生间,改为两间卫生间。将原厨房空间改为餐厅,厨房改到餐厅与客厅之间。朝南两间设计为主卧套房和小孩房套房。朝北的房间设计为客房,老人偶尔来住住。地下夹层设计为娱乐休闲空间,预留一间客卧。地下一层设计为影音室、水吧区。

本案设计风格定位为美式风格,追求华丽、高雅的古典风格,居室色调以白色为主,配合各种花饰、丰富的木线条、富丽的窗帘帷幄,空间多表现出华美、富丽、浪漫的气氛


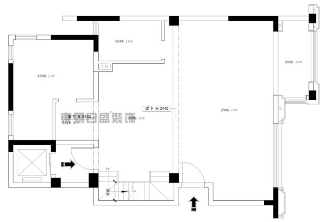
地下一层原始平面图


地下夹层原始平面图


一层原始平面图


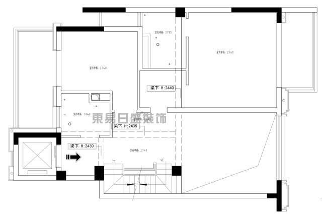
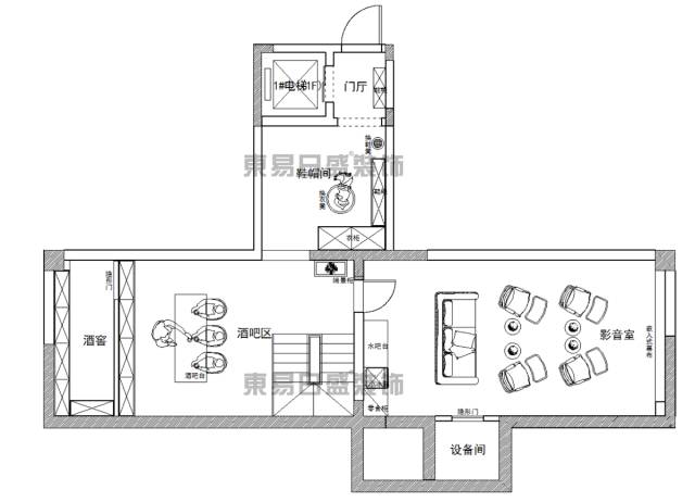
地下一层平面布置图


地下夹层平面布置图


一层平面布置图


案例效果图




6

五叠下187㎡户型设计


案例户型:五叠下

案例面积:187㎡

案例风格:现代



设 计 师  :任婷


设计说明:

现代社会的快节奏,犹如洪水激流,激荡着每个人的内心,我们想停下脚步,去探寻那消逝已久的宁静和安详。本案的初衷是要还原生活本质,俯下身子,让自己去触摸生活的质朴,从而汲取力量,再出发。

空气、阳光,如今真正成了奢侈品,从早到晚这所房子留住了一整天的阳光,房子里的绿植也过得格外滋润,阳光打在墙上,温暖了整间房,清风徐来,窗纱随风摇曳,客厅明亮且舒服,窗外花开四季,屋内茶饭飘香,慵懒的躺在沙发上,惬意、安详。


户型规划图


案例效果图





7

五叠上175㎡户型设计


案例户型:五叠上

案例面积:175㎡

案例风格:现代简约



设 计 师  :魏坤


设计说明:

从蹒跚学步到朗朗书声,从跨入大学校门到走进社会的人生,时光流逝,岁月有声,蓦然回首,追忆那年的夏花,青柳、白棉,金灿灿的油菜田,每每布谷鸟的轻叫声,便唤醒我整个童年。  

傍晚时分,临窗而立,窗外的风轻轻的吹着,树上枝叶沙沙作响,那是大自然的回响,当月光升起的时候,坐在沙发上,听最动听的声音,看最动心的文字,伴着月光,静静的感受纯简如斯的世界。 


地下室原始平面图


一层原始平面图


二层原始平面图


露台原始平面图


地下室平面布置图


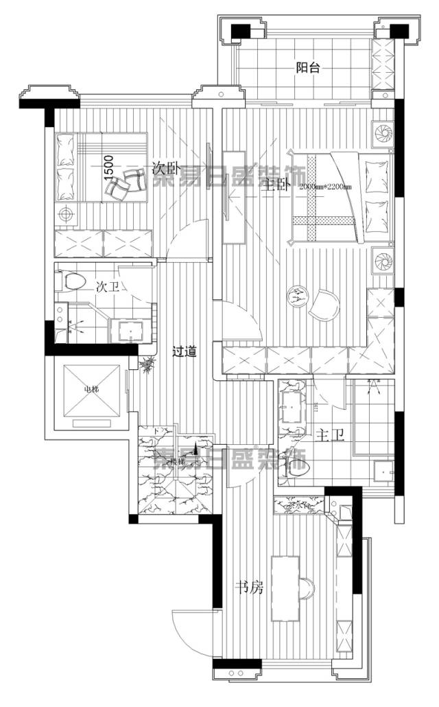
一层平面布置图


二层平面布置图


露台平面布置图


案例效果图





8

五叠中230㎡户型设计


案例户型:五叠中

案例面积:230㎡

案例风格:现代美式

设 计 师  :王涛


设计说明:

本案设计为现代美式风格,通过柔和的色彩,细密的质感以及天然的纹理自然的融入到设计中。

此案中以简洁、直接、功能化且贴近自然。二层作为主卧和次卧使用,我们扩大了主卧的面积以套间的形式展现。一层作为饮食和休闲区域,满足俩个人的日常生活需求,也能在有客人时体现功能的需求性。负一层作为娱乐区域,日常娱乐,休闲,独自静静的品味着书中的文字。


一层平面布置图



负一层平面布置图



案例效果图




20年,我们希望用爱

给你更好的家、更好的生活

也希望你拥有把生活过得更漂亮的能力

东易日盛始终与你一起



发现美、发现惊喜

预约领取8000元装修福利

识别二维码

报名预约获取户型方案和报价

5分钟告诉你家是什么样子



点击下方“阅读原文查看东易日盛更多优惠活动

Copyright © 2023 All Rights Reserved 版权所有 山东跟团价格交流组